
Louisa
Louisa, une maison contemporaine à étage pensée pour conjuguer grande pièce de vie, suite au rez-de-chaussée et espace nuit familial à l’étage.
Le modèle Louisa propose une architecture à étage au style contemporain, inspirée des maisons du Sud avec ses volumes enduits clairs et sa toiture en tuiles. Les vues extérieures mettent en valeur une façade élégante, des ouvertures généreuses et des espaces extérieurs pensés pour profiter pleinement des beaux jours.
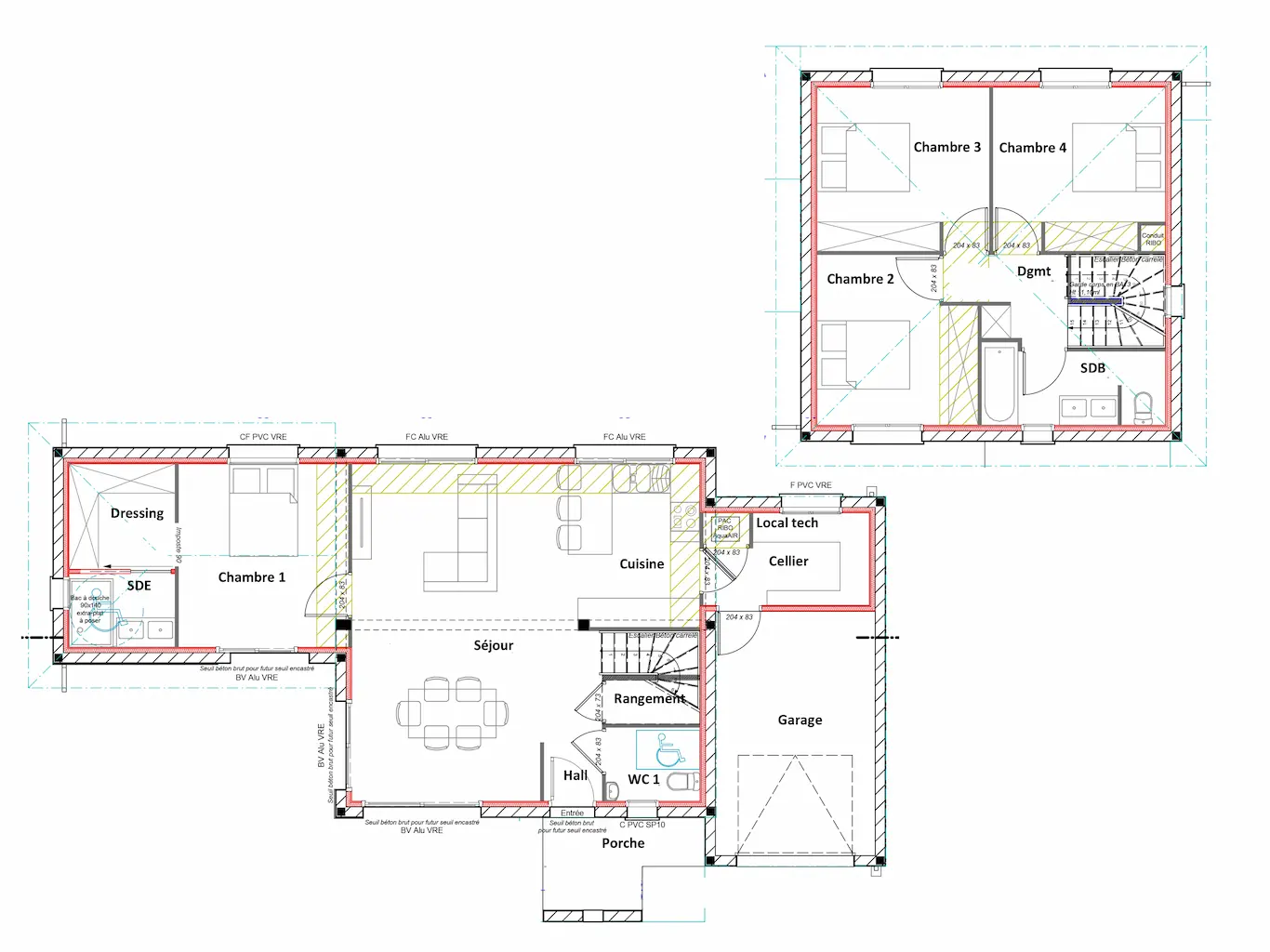
Au rez-de-chaussée, le plan s’organise autour d’un hall qui mène vers une grande pièce séjour ouverte, complétée par une cuisine conviviale. Une chambre 1 dispose de son dressing et d’une salle d’eau, idéale pour une suite parentale ou une chambre d’amis.
Les espaces annexes renforcent le confort du quotidien avec un cellier + local technique attenant et un garage. Un WC indépendant et des zones de rangement viennent optimiser la circulation et les usages.
À l’étage, le dégagement distribue 3 chambres (Chambre 2, Chambre 3 et Chambre 4) ainsi qu’une salle de bains, formant un espace nuit parfaitement adapté à la vie de famille.
À l’intérieur, l’ambiance se veut lumineuse et actuelle : cuisine avec îlot, lignes épurées, teintes douces et matériaux chaleureux favorisent une vraie sensation de volume dans la pièce de vie.

Ambiance intérieure

Plan de la maison

Vidéo
Réponse sous 24h ouvrées. Vos données restent confidentielles.
