Maison contemporaine – 260m² de confort
Vivez l’expérience du luxe sur-mesure avec cette superbe maison contemporaine pensée pour conjuguer design, volume et bien-être. Signée CELIA Création, constructeur de maisons individuelles dans le Sud-Ouest, ce modèle ARTEA séduit par son architecture moderne et ses prestations haut de gamme.
Dès le premier regard, cette maison d’architecte capte l’attention par son allure contemporaine affirmée. Son toit plat, ses lignes épurées et ses vastes baies vitrées lui confèrent un style résolument moderne, ouvert sur l’extérieur.
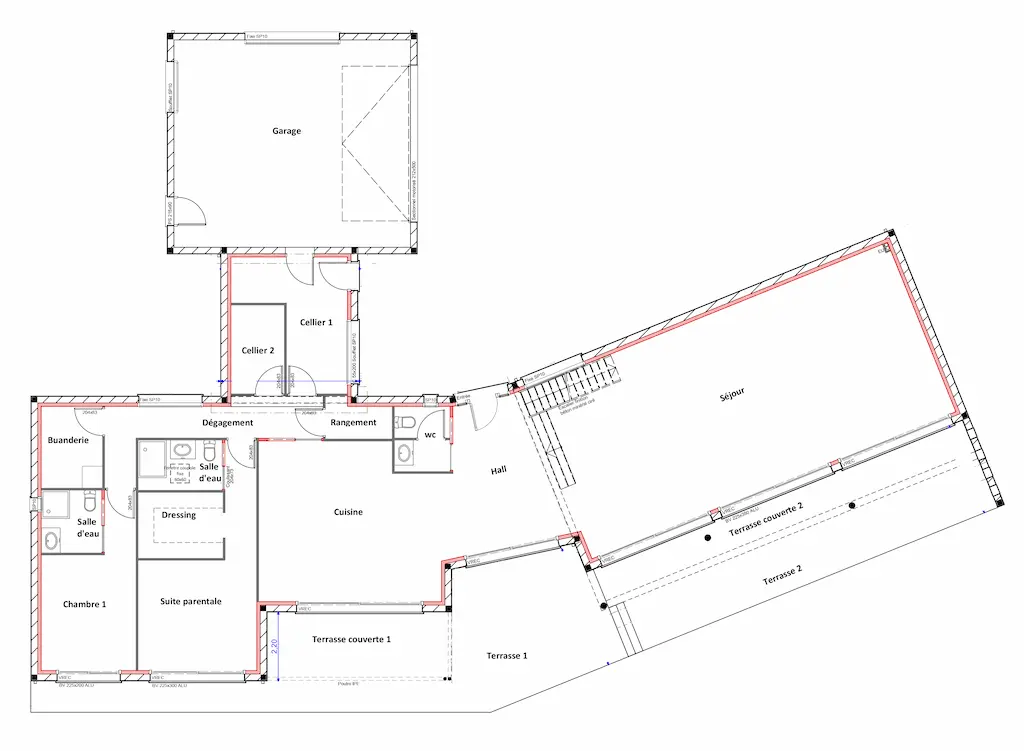
Avec une surface habitable généreuse de 260 m², elle s’organise sur deux niveaux pour accueillir une vie familiale confortable et fonctionnelle. Le rez-de-chaussée privilégie les grands volumes : un séjour lumineux avec vue panoramique sur le jardin et la piscine, une cuisine ouverte idéale pour recevoir, et une suite parentale avec dressing et salle d’eau privative pour un confort quotidien.
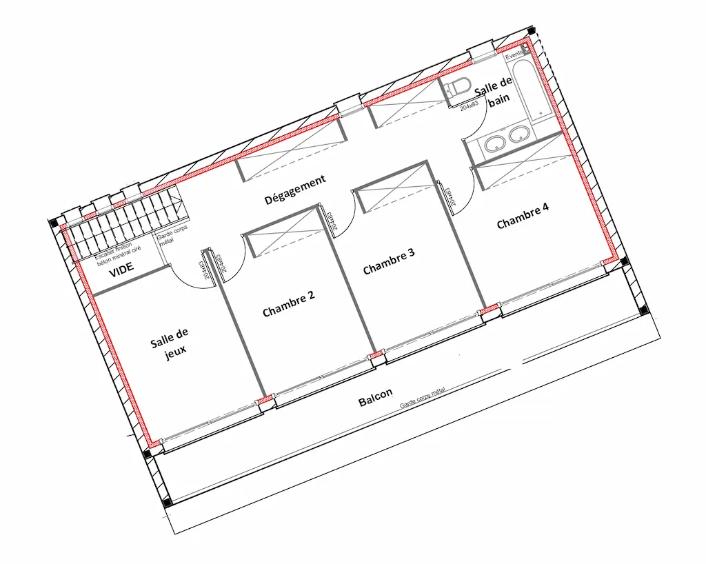
À l’étage, quatre chambres supplémentaires, une salle de bain et une salle de jeux offrent un espace nuit parfaitement structuré pour les enfants ou les invités.
Les matériaux de qualité (menuiseries aluminium, béton minéral, larges ouvertures vitrées) accentuent l’élégance de cette maison. Le garage intégré, la buanderie, les celliers et nombreux rangements viennent renforcer la praticité.
Pensée pour le climat du Sud-Ouest, cette maison bénéficie d’une excellente performance énergétique grâce à son orientation optimisée, ses équipements techniques et sa conception bioclimatique. En extérieur, la piscine bordée de terrasses et d’un jardin paysager crée un cadre de vie idéal pour les beaux jours.
Caractéristiques de la maison
| Élément | Détail |
|---|---|
| Surface | 360 m² |
| Style | Contemporain, toit plat |
| Nombre de chambres | 5 dont une suite parentale |
| Garage | Oui |
| Forme | En L |
| Plain-pied / étage | Etage |
Envie de concrétiser votre projet de construction dans le Sud-Ouest ?
📞 Contactez CELIA Création dès maintenant pour une étude personnalisée, un rendez-vous ou une visite virtuelle de cette maison moderne pensée pour vous.
Vous aimez ce modèle ?
Faites-nous part de votre projet ou posez vos questions, nous vous répondrons sous 24h.






